Ziet u een fout in deze regeling? Meld het ons op regelgeving@overheid.nl!
Deventer

Besluit van het college van burgemeester en wethouders van de gemeente Deventer houdende regels omtrent aanwijzing algemene plaatselijke verordening Algemeen aanwijzingsbesluit Algemene plaatselijke verordening Deventer

Wetstechnische informatie

Gegevens van de regeling
OrganisatieDeventer
OrganisatietypeGemeente
Officiële naam regelingBesluit van het college van burgemeester en wethouders van de gemeente Deventer houdende regels omtrent aanwijzing algemene plaatselijke verordening Algemeen aanwijzingsbesluit Algemene plaatselijke verordening Deventer
CiteertitelAlgemeen aanwijzingsbesluit Algemene plaatselijke verordening Deventer
Vastgesteld doorcollege van burgemeester en wethouders
Onderwerpbestuur en recht
Eigen onderwerp
Externe bijlagenKaart 1 Kaart 2 Kaart 3 Kaart 4 Kaart 5 Kaart 6 Kaart 7 Kaart 8 Kaart 9 Kaart 10 Kaart 11 Kaart 12 Kaart 13 Kaart 14

Opmerkingen met betrekking tot de regeling

Geen

Wettelijke grondslag(en) of bevoegdheid waarop de regeling is gebaseerd

http://decentrale.regelgeving.overheid.nl/cvdr/XHTMLoutput/Historie/Deventer/606003/CVDR606003_1.html

Overzicht van in de tekst verwerkte wijzigingen

Datum inwerkingtreding

Terugwerkende kracht tot en met

Datum uitwerkingtreding

Betreft

Datum ondertekening

Bron bekendmaking

Kenmerk voorstel

17-01-201831-05-2018nieuwe regeling

20-12-2017

gmb-2018-9621

30-12-201717-01-2018nieuwe regeling

20-12-2017

gmb-2017-234374

28-12-201730-12-2017nieuwe regeling

20-12-2017

gmb-2017-231927

Tekst van de regeling

Intitulé

Besluit van het college van burgemeester en wethouders van de gemeente Deventer houdende regels omtrent aanwijzing algemene plaatselijke verordening Algemeen aanwijzingsbesluit Algemene plaatselijke verordening Deventer

Burgemeester en wethouders van de gemeente Deventer voor zover zij daartoe bevoegd zijn en de

Burgemeester van de gemeente Deventer, voor zover hij daartoe bevoegd is,

 

overwegende dat:

 

  • -

    zij met het oog op de uitvoering van de Algemene plaatselijke verordening gemeente Deventer bevoegd zijn:

     

    • a.

      openbare plaatsen of andere gebieden aan te wijzen waarbinnen, al dan niet met beperkingen, bepaalde verboden gelden;

    • b.

      categorieën van gevallen, openbare plaatsen of andere gebieden aan te wijzen waarbinnen bepaalde verboden, al dan niet met beperkingen, niet gelden;

    • c.

      nadere regels vast te stellen om redenen zoals vermeld in de van dit besluit deel uitmakende motivering en toelichting, grond bestaat van deze bevoegdheden gebruik te maken;

  • -

    gelet op de Algemene plaatselijke verordening Deventer,

 

B E S L U I T E N :

 

Vast te stellen het ‘Algemeen aanwijzingsbesluit Algemene plaatselijke verordening Deventer’.

Artikel 1 Gebiedsaanwijzing handel en dienstverlening op straat

Ter uitvoering van het bepaalde in de artikelen 2:6, 2:7 en 5:15 van de APV worden de navolgende openbare plaatsen  aangewezen waar het zonder ontheffing respectievelijk verboden is om:

  • a.

    gedrukte of geschreven stukken dan wel afbeeldingen onder publiek te verspreiden dan wel openlijk aan te bieden (verspreiden van geschreven en gedrukte stukken)

  • b.

    zich te begeven met het kennelijke doel anderen te bewegen, een steunverklaring te geven, om lid of donateur te worden van een instelling of organisatie of om deel te nemen aan een onderzoek of enquête (donateurs- en ledenwerving)

  • c.

    te venten (ventverbod)

 

I. Winkelcentrum Colmschate

Flora, Grote Ratelaar, Fonteinkruid, Daslook, Salomonszegel, met inbegrip van genoemde straten van gevel tot gevel voor zover direct grenzend aan het omsloten gebied.

Deze plaatsen zijn weergegeven op de bij dit besluit behorende ”Gebiedsaanwijzingskaart handel en dienstverlening op straat, winkelcentrum Colmschate, APV Deventer”.

 

II. Winkelcentrum Keizerslanden

Het gebied omsloten door Margijnenenk, Karel de Grotelaan, Graaf Florisstraat en de van Hetenstraat

Deze plaatsen zijn weergegeven op de bij dit besluit behorende ”Gebiedsaanwijzingskaart handel en dienstverlening op straat, winkelcentrum Keizerslanden, APV Deventer”.

 

III. Winkelcentrum Andriessenplein

Het Andriessenplein. Deze plaats is weergegeven op de bij dit besluit behorende “Gebiedsaanwijzingskaart Andriessenplein, verbod dienstverlening en handel op straat APV Deventer”.

 

IV. Beestenmarkt

Het gebied omsloten door de 1e Pauwelandstraat, Brinkgreverweg, Diepenveenseweg en de Hoge Rij

Deze plaatsen zijn weergegeven op de bij dit besluit behorende ”Gebiedsaanwijzingskaart handel en dienstverlening op straat ,Beestenmarkt, APV Deventer”.

 

V. Kernwinkelgebied: De winkel- en aanloopstraten, inclusief de pleinen in de binnenstad en Boreel

Achter de Broederen, Boterstraat, Boreelplein, Brink, Bergstraat 2 t/m 4, Broederenplein, Duivengang, Engestraat,Gibsonstraat (tot Binnensingel), Golstraat, Graven, Grote Kerkhof, Grote Overstraat, Grote Poot, Hofstraat, Houtmarkt-Pikeursbaan (tussen Bergkerkplein en Damstraat),Keizerstraat (tot Brinkpoortstraat) , Kleine Overstraat, Kleine Poot, Korte Assenstraat Korte Bisschopstraat, Lamme van Dieseplein, Lange Bisschopstraat, Nieuwe Markt, Nieuwstraat, Pontsteeg, Proosdijpassage, Sandrasteeg, Sijzenbaan, Smedenstraat, Spijkerboorsteeg, Striksteeg, Stromarkt, Treurnietsgang, Vispoort, Vleeshouwerstraat, Vispoort, Walstraat (tot aan Bergkerkplein), Waterstraat, Waltorenpad, Zandpoort.

 

  • 1.

    Het verbod is voor de gebieden I tot en met IV niet van toepassing indien voldaan wordt aan alle navolgende voorwaarden:

     

WIE

  • -

    in een gezelschap van maximaal twee personen

WAT

  • -

    geen gebruik van elektrisch versterkte instrumenten

WAAR

  • -

    niet voor de ingang van een woning, winkel, horecagelegenheid, of kantoor;

 

  • -

    niet binnen 5 meter vanaf een terras

 

  • -

    niet binnen een afstand van 50 meter van een andere venter, een andere donateurs- of ledenwerver dan wel een andere aanbieder van gedrukte of geschreven stukken;

 

  • -

    niet op een markt of evenemententerrein (gedurende de markt of het evenement)

WANNEER

  • -

    op doordeweekse dagen tussen 09.00 uur en 21.00 uur

 

  • -

    zaterdags tussen 09.00 uur en 21.00 uur

 

  • -

    op koopzondagen tussen 13.00 uur en 21.00 uur

HOE LANG

  • -

    maximaal 30 minuten op dezelfde locatie, waarna het optreden op een afstand van minimaal 50 meter van die locatie mag worden voortgezet.

 

  • -

    op één dag mag een eenmaal gebruikte standplaats maximaal 2 keer door dezelfde straatartiest, aanbieder van gedrukte en geschreven stukken, handelaar, enquêteur etc. mag worden ingenomen, maar niet binnen een tijdsbestek van 1 uur.

HOE

  • -

    voetgangers- en ander verkeer mag niet belemmerd of gehinderd worden

 

  • -

    niet actief collecteren

 

  • -

    de verspreiders van gedrukte of geschreven stukken zijn binnen het aangewezen gebied verplicht deze stukken -voor zover redelijkerwijze van hen mag worden verwacht- in te zamelen (op te ruimen), indien deze door de ontvangers op straat worden geworpen

 

  • -

    er mag geen geluids- of andere overlast worden veroorzaakt

Artikel 1a Gebiedsaanwijzing straatmuzikant

Ter uitvoering van het bepaalde in de artikelen 2:9 van de APV worden de navolgende openbare plaatsen aangewezen waar het zonder ontheffing verboden is om als straatmuzikant (straatartiest) op te treden. Onder een straatartiest wordt tevens (de bediener van) een draaiorgel begrepen:

 

I. Kernwinkelgebied: De winkel- en aanloopstraten, inclusief de pleinen in de binnenstad

Achter de Broederen, Boterstraat, Brink, Bergstraat 2 t/m 4, Broederenplein, Duivengang, Engestraat, Gibsonstraat (tot Binnensingel), Golstraat, Graven, Grote Kerkhof, Grote Overstraat, Grote Poot, Hofstraat, Houtmarkt-Pikeursbaan (tussen Bergkerkplein en Damstraat),Keizerstraat (tot Brinkpoortstraat) , Kleine Overstraat, Kleine Poot, Korte Assenstraat Korte Bisschopstraat, Lamme van Dieseplein, Lange Bisschopstraat, Nieuwe Markt, Nieuwstraat, Pontsteeg, Proosdijpassage, Sandrasteeg, Sijzenbaan, Smedenstraat, Spijkerboorsteeg, Striksteeg, Stromarkt, Treurnietsgang, Vispoort, Vleeshouwerstraat, Vispoort, Walstraat (tot aan Bergkerkplein), Waterstraat Zandpoort. Deze plaatsen zijn weergegeven op de bij dit besluit behorende ”Gebiedsaanwijzingskaart straatmuzikant, APV Deventer ”.

 

II. Winkelcentrum Colmschate

Flora, Grote Ratelaar, Fonteinkruit, Daslook Salomonszegel met inbegrip van genoemde straten van gevel tot gevel voor zover direct grenzend aan het omsloten gebied.

Deze plaatsen zijn weergegeven op de bij dit besluit behorende ”Gebiedsaanwijzingskaart handel en dienstverlening op straat, winkelcentrum Colmschate, APV Deventer”.

 

III. Winkelcentrum Keizerslanden

Het gebied omsloten door Margijnenenk, Karel de Grotelaan, Graaf Florisstraat en de van Hetenstraat

Deze plaatsen zijn weergegeven op de bij dit besluit behorende ”Gebiedsaanwijzingskaart handel en dienstverlening op straat, winkelcentrum Keizerslanden, APV Deventer”.

 

IV. Winkelcentrum Andriessenplein

Het Andriessenplein. Deze plaats is weergegeven op de bij dit besluit behorende “Gebiedsaanwijzingskaart Andriessenplein, verbod dienstverlening en handel op straat APV Deventer”.

 

V. Beestenmarkt

Het gebied omsloten door de 1e Pauwelandstraat, Brinkgreverweg, Diepenveenseweg en de Hoge Rij

Deze plaatsen zijn weergegeven op de bij dit besluit behorende ”Gebiedsaanwijzingskaart handel en dienstverlening op straat, Beestenmarkt, APV Deventer”.

 

Het verbod is niet van toepassing indien voldaan wordt aan alle navolgende voorwaarden:

 

WIE

  • -

    in een gezelschap van maximaal twee personen;

WAT

  • -

    geen gebruik van elektrisch versterkte instrumenten;

WAAR

  • -

    niet voor de ingang van een woning, winkel, horecagelegenheid of kantoor;

 

  • -

    niet binnen 5 meter vanaf een terras

 

  • -

    niet binnen een afstand van 50 meter van een andere straatartiest

 

  • -

    niet op een markt of evenemententerrein (gedurende de markt of het evenement)

WANNEER

  • -

    op doordeweekse dagen tussen 09.00 uur en 21.00 uur

 

  • -

    zaterdags tussen 09.00 uur en 21.00 uur

 

  • -

    op koopzondagen tussen 13.00 uur en 21.00 uur

HOE LANG

  • -

    maximaal 30 minuten op dezelfde locatie, waarna het optreden op een afstand van minimaal 50 meter van die locatie mag worden voortgezet.

 

  • -

    op één dag mag een eenmaal gebruikte standplaats maximaal 2 keer door dezelfde straatartiest etc. mag worden ingenomen, maar niet binnen een tijdsbestek van 1 uur

HOE

  • -

    voetgangers- en ander verkeer mag niet belemmerd of gehinderd worden

 

  • -

    niet actief collecteren

 

  • -

    de verspreiders van gedrukte of geschreven stukken zijn binnen het aangewezen

 

  • -

    de verspreiders van gedrukte of geschreven stukken zijn binnen het aangewezen gebied verplicht deze stukken - voor zover redelijkerwijze van hen mag worden verwacht - in te zamelen (op te ruimen), indien deze door de ontvangers op straat worden geworpen.

 

  • -

    er mag geen geluids- of andere overlast worden veroorzaakt

Artikel 2 Gebiedsaanwijzing uitstallingenverbod

Ter uitvoering van het bepaalde in artikel 2:10a, tweede lid, van de APV worden de navolgende openbare plaatsen aangewezen waar het zonder ontheffing verboden is om op of boven de weg:

  • a.

    uitstallingen te plaatsen of aanwezig te hebben op een afstand van meer dan 0.60 meter vanaf de gevel van het winkel of bedrijfspand waarop de uitstalling betrekking heeft, met dien verstande dat voor de winkelgebieden Boxbergerweg en Rielerweg tevens geldt dat te allen tijde een vrije beloopbare trottoirruimte dient over te blijven van 1.20 meter uitstallingen bestaande uit reclameborden, reclamevlaggen of andere reclameobjecten te plaatsen tenzij deze plaatsing voldoet aan de volgende voorwaarden:

    • i.

      uitsluitend tijdens de openingsuren van het bedrijf aan het pand bevestigd;

    • ii.

      niet verder uitsteken dan 0.30 meter vanaf de gevel;

    • iii.

      gezamenlijk geen grotere oppervlakte hebben dan 0.80 m²;

    • iv.

      niet in strijd zijn met redelijke eisen van welstand;

    • v.

      niet hoger hangen dan 3.50 meter boven de weg, maar in ieder geval niet hoger dan de

    • vi.

      grens tussen de begane grond en de eerste verdieping.

       

I Winkel- en aanloopstraten, inclusief de pleinen in de binnenstad (Kernwinkelgebied)

Achter de Broederen, Boterstraat, Brink, Bergstraat 2 t/m 4, Broederenplein, Duivengang, Engestraat,

Gibsonstraat (tot Binnensingel), Golstraat, Graven, Grote Kerkhof, Grote Overstraat, Grote Poot, Hofstraat, Houtmarkt-Pikeursbaan (tussen Bergkerkplein en Damstraat),Keizerstraat (tot Brinkpoortstraat) , Kleine Overstraat, Kleine Poot, Korte Assenstraat Korte Bisschopstraat, Lamme van Dieseplein, Lange Bisschopstraat, Nieuwe Markt, Nieuwstraat, Pontsteeg, Proosdijpassage, Sandrasteeg, Sijzenbaan, Smedenstraat, Spijkerboorsteeg, Striksteeg, Stromarkt, Treurnietsgang, Vispoort, Vleeshouwerstraat, Vispoort, Walstraat (tot aan Bergkerkplein), Waterstraat, Zandpoort.

 

II. Winkelgebied Boxbergerweg

Boxbergerweg tot huisnummer 106

 

III. Rielerweg

Rielerweg (tussen Boxbergerweg en Veenweg).Deze plaats is weergegeven op de bij dit besluit behorende “Gebiedsaanwijzingskaart uitstallingenverbod Kernwinkelgebied, Boxbergerwerg, Rielerweg, APV Deventer”.

Artikel 3 Gebiedsaanwijzing vuurwerkvrije zone

Ter uitvoering van het bepaalde in artikel 2:73, eerste lid, van de APV wordt aangewezen als openbare plaats waar het verboden is consumentenvuurwerk te bezigen:

 

Ulebelt

Het gebied rondom De Ulebelt, Maatmansweg 3 te Deventer, omsloten door Maatmansweg, Duikerstraat, Leonard Sprengerlaan, Colmschaterstraatweg. Nulendsweg, Gooikersdijk. Het gebied is weergegeven op de bij dit besluit behorende “Gebiedsaanwijzingskaart vuurwerkvrije zone APV, Ulebelt, Deventer”.

Artikel 4 Gebiedsaanwijzing verbod glas op de weg

Ter uitvoering van het bepaalde in artikel 2:31a, tweede lid, APV wordt de navolgende openbare plaats aangewezen waar het een ieder tussen 01.00 uur en 09.00 uur verboden is (drank in) glas bij zich te hebben:

 

Binnenstad Deventer

Het gebied omsloten door Welle inclusief de lager gelegen kade (vanaf de Vispoort tot de Wilhelminabrug), Zandpoort, Achter de Muren-Zandpoort, Bergschild tot de Emmastraat, Emmaplein, Kazernestraat, mr. H.F. de Boerlaan, Handelskade, Verzetslaan, Singel, Hovenpad, Kapjeswelle

Het gebied is weergegeven op de bij dit besluit behorende “Gebiedsaanwijzingskaart verboden drankgebruik en verbod glas op de weg, binnenstad Deventer, APV Deventer”.

Artikel 5 Gebiedsaanwijzing verboden drankgebruik

Ter uitvoering van het bepaalde in artikel 2:48, eerste lid, van de APV worden de navolgende openbare plaatsen aangewezen waar het verboden is alcoholhoudende drank te gebruiken of aangebroken flessen, blikjes en dergelijke met alcoholhoudende drank bij zich te hebben anders dan:

  • a.

    op een terras dat behoort bij een horecabedrijf, als bedoeld in artikel 1 van de Drank- en Horecawet

  • b.

    op een plaats, niet zijnde een horecabedrijf als bedoeld onder a, waarvoor een ontheffing geldt krachtens artikel 35 van de Drank- en Horecawet (bevoegdheid tot ontheffingverlening door de burgemeester voor het verstrekken van zwak-alcoholhoudende drank bij een in de beschikking aangewezen bijzondere gelegenheid van zeer tijdelijke aard voor een aaneengesloten periode van ten hoogste twaalf dagen)

 

I. Omgeving Station NS/ Voorstad/ Beestenmarkt

Het gebied omsloten door Stationsplein, Stationsstraat (voorzijde) , Diepenveenseweg, Smyrnastraat, 1e Kruisstraat , Eendrachtstraat, Langer Rij, 1e Pauwelandstraat tot Brinkgreverweg, Beestenmarkt tot Brinkgreverweg, Diepenveenseweg, alles met inbegrip van genoemde straten van gevel tot gevel voor zover direct grenzend aan het omsloten gebied.

Het gebied is weergegeven op de bij dit besluit behorende “Gebiedsaanwijzingskaart verboden drankgebruik Omgeving station NS/Voorstad Centrum/Beestenmarkt APV Deventer”.

 

II. Winkelcentrum Colmschate

Het gebied omsloten door Flora, Grote Ratelaar, Fonteinkruit, Daslook Salomonszegel met inbegrip van genoemde straten van gevel tot gevel voor zover direct grenzend aan het omsloten gebied,.

Het gebied is weergegeven op de bij dit besluit behorende “Gebiedsaanwijzingskaart verboden drankgebruik winkelcentrum Colmschate APV Deventer”.

 

III. Binnenstad Deventer

Het gebied omsloten door Welle inclusief de lager gelegen kade (vanaf de Vispoort tot de Wilhelminabrug), Zandpoort, Achter de Muren-Zandpoort, Bergschild tot de Emmastraat, Emmaplein, Kazernestraat, mr. H.F. de Boerlaan, Handelskade, Verzetslaan, Singel, Hovenpad, Kapjeswelle

Het gebied is weergegeven op de bij dit besluit behorende “Gebiedsaanwijzingskaart verboden drankgebruik en verbod glas op de weg, binnenstad Deventer, APV Deventer”.

 

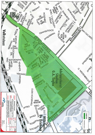
IV. Omgeving voetbalstadion de Adelaarshorst

Brinkgreverweg, Ceintuurbaan Churchillplein Leeuwenbrug Stationsplein Stationsstraat Hoge Hondstraat, Herman Boerhavelaan, Bierstraat, Rielerweg, Veenweg Vetkampstraat, Hof van Colmschate Wechelerstraat (tot Rielerweg), Van Oldenielstraat, Tjoenerstraat, Henri Dunantlaan

Het gebied is weergegeven op de bij dit besluit behorende “Gebiedsaanwijzingskaart verboden drankgebruik omgeving voetbalstadion De Adelaarshorst APV Deventer”.

Artikel 6 Gebiedsaanwijzing fietsparkeerverbod

Ter uitvoering van het bepaalde in artikel 2:53 van de APV worden in het belang van het uiterlijk aanzien van de gemeente, ter voorkoming of opheffing van overlast, of ter voorkoming van schade aan de openbare gezondheid de navolgende openbare plaatsen aangewezen waar het, verboden is fietsen of bromfietsen:

  • a.

    onbeheerd buiten de daarvoor bestemde ruimten of plaatsen te laten staan

  • b.

    langer dan 8 dagen binnen de daarvoor bestemde ruimten of plaatsen onbeheerd te laten staan

 

I. De kop van de Brink

Het gebied omsloten door de Kop van de Brink ( tot Keizerstraat 1 en 2, tot Korte Bisschopstraat 41 en 32 tot Brink 2 en 98).

Het gebied is weergegeven op de bij dit besluit behorende “Gebiedsaanwijzingskaart fietsparkeerverbod Kop van de Brink, APV Deventer”.

 

II. Stationsomgeving

Het gebied omsloten door Stationsstraat- Singel- Brinkgreverweg-Nieuwerij-Eendrachtstraat

  • 1.

    Dit verbod is niet van toepassing op tandems, bakfietsen, ligfietsen en andere fietsen welke door hun afwijkende maatvoering niet in de reguliere fietsrekken kunnen worden gestald.

  • 2.

    Het gebied is weergegeven op de bij dit besluit behorende “Gebiedsaanwijzingskaart fietsparkeerverbod, Stationsomgeving, APV Deventer”.

Artikel 7 Gebiedsaanwijzing ligplaats woonschepen en overige vaartuigen

I. Ligplaats woonschepen

Ter uitvoering van het bepaalde in artikel 5:25, tweede lid, sub a van de APV wordt aangewezen als gebied waar het zonder ontheffing verboden is met een woonschip ligplaats in te nemen of te hebben dan wel een ligplaats voor een woonschip beschikbaar te stellen tot ten hoogste het aantal plaatsen zoals op de gebiedsindelingskaart aangegeven:

  • a.

    Alle gedeelten van openbaar water gelegen langs de Snipperlingsdijk, de Hunneperkade en de Douwelerstraat, alsmede de Buitengracht langs de Bergsingel en de Sluisstraat

  • b.

    Het jachthavencomplex in de Zandweerdsplas ter hoogte van de RembrandtkadeHet gebied is weergegeven op de bij dit besluit behorende “Gebiedsaanwijzingskaart ligplaats voor woonschepen, APV Deventer”.

Het gebied is weergegeven op de bij dit besluit behorende “Gebiedsaanwijzingskaart ligplaats voor woonschepen, APV Deventer”.

 

II. Overige vaartuigen

Ter uitvoering van het bepaalde in artikel 5:25, tweede lid, sub b, van de APV wordt aangewezen als gebied waar het is toegestaan met een vaartuig, niet zijnde een woonschip, ligplaats in te nemen of te hebben dan wel een ligplaats voor een vaartuig beschikbaar te stellen:

  • a.

    Alle gedeelten van het openbaar water gelegen langs Onder de Linden, de Wellekade, de Pothoofdkade, de Voorhaven, de Gashaven en de Havenarmen;

  • b.

    Het jachthavencomplex in de Zandweerdsplas ter hoogte van de Rembrandtkade;

  • c.

    De Passantenhaven nabij het IJsselhotel (8 ligplaatsen voor plezierjachten, kortdurend verblijf, tussen zonsopgang en zonsondergang);

  • d.

    Scoutinghaven nabij het IJsselhotel (maximaal 5 vaartuigen met een maximale breedte van 2.00 meter en een maximale lengte van 6.00 meter per vaartuig);

  • e.

    Veerpont en reserveveerpont (maximaal 2 ponten).

Het gebied is weergegeven op de bij dit besluit behorende “Gebiedsaanwijzingskaart ligplaats overige vaartuigen, APV Deventer”.

Artikel 8 Categorie-aanwijzing vergunningvrije voorwerpen in, op of boven openbare plaatsen

Ter uitvoering van het bepaalde in artikel 2:10, vierde lid, sub e, van de APV worden de navolgende categorieën voorwerpen aanwezen welke zich in op of boven openbare grond mogen bevinden, zonder dat daarvoor een voorafgaande melding als bedoeld in 2:10, eerste lid, is vereist:

  • 1.

    het uitsteken van ondergeschikte gevelonderdelen, vlaggen, wimpels en vlaggenstokken, zonneschermen uithangborden e.d. aan een opgaande gevel van een gebouw indien deze:

    • a.

      geen gevaar of hinder kunnen opleveren voor personen of goederen;

    • b.

      zijn aangebracht boven het voor voetgangers bestemde gedeelte van de weg en mits geen onderdeel zich minder op dan 2.20 meter boven dat gedeelte bevindt;

    • c.

      geen onderdeel van het scherm, in welke stand dat ook staat, zich op minder dan 0.50 meter van het voor het rijverkeer bestemde gedeelte van de weg bevindt;

    • d.

      geen onderdeel verder dan 1.50 meter buiten de opgaande gevel reikt;

    • e.

      niet voor commerciële doeleinden worden gebruikt.

  • 2.

    reclameobjecten e.d. aan een opgaande gevel van een gebouw waarvoor een reclamevergunning als bedoeld in artikel 4:15 van de APV is vereist en tevens is verleend en welke voorts voldoen aan de volgende voorwaarden:

    • a.

      geen gevaar of hinder kunnen opleveren voor personen of goederen;

    • b.

      zijn aangebracht boven het voor voetgangers bestemde gedeelte van de weg en mits geen onderdeel zich minder op dan 2.20 meter boven dat gedeelte bevindt;

    • c.

      geen onderdeel van het scherm, in welke stand dat ook staat, zich op minder dan 0.50 meter van het voor het rijverkeer bestemde gedeelte van de weg bevindt;

    • d.

      geen onderdeel verder dan 1.50 meter buiten de opgaande gevel reikt.

  • 3.

    voorwerpen of stoffen, die noodzakelijkerwijze kortstondig op de weg gebracht worden in verband met laden of lossen ervan. het tijdelijk aan- en afvoeren van bouw- en sloopmaterialen inbegrepen, mits degene die de werkzaamheden verricht of doet verrichten ervoor zorgt, dat onmiddellijk na het beëindigen daarvan, in elk geval voor zonsondergang, de voorwerpen of stoffen van de weg verwijderd zijn en de weg daarvan gereinigd is;

  • 4.

    het gedurende een werkdag uitvoeren van kleinschalige onderhoudswerkzaamheden op de weg mits degene die de onderhoudswerkzaamheden verricht of doet verrichten er voor zorgt, dat het veilig en doelmatig gebruik van de weg niet wordt belemmerd en dat direct na de beëindiging van de onderhoudswerkzaamheden, in elk geval voor zonsondergang, de voorwerpen of stoffen van de weg verwijderd zijn;

  • 5.

    warenautomaten.

Artikel 9 Nadere regels voorwerpen op de aan of boven de weg of een andere openbare plaats: Containers, steigers, hekwerken, loodsen, bouwmaterialen e.d.

Ter uitvoering van het bepaalde in artikel 2:10, vijfde lid, van de APV worden de navolgende nadere regels gesteld, ten aanzien van de inneming van openbare grond voor containers, steigers, hekwerken, loodsen, bouwmaterialen en dergelijke in verband met de uitvoering van bouw- sloop- onderhouds- en gevelwerkzaamheden:

 

  • 1.

    Eisen waaraan altijd dient te worden voldaan:

    • a.

      De inneming mag niet op een zodanige wijze plaatsvinden daardoor de vrijheid van het verkeer wordt belemmerd of de veiligheid van het verkeer in gevaar wordt gebracht;

    • b.

      De doorgang voor brandweervoertuigen mag niet worden versperd (een minimale doorrijd- breedte van 3.50 meter dient altijd te zijn gewaarborgd)

    • c.

      De loopvrije trottoirruimte mag niet minder worden dan 1.00 meter, tenzij aanvullende veiligheidsvoorzieningen worden getroffen;

    • d.

      Ingeval sprake is van een container dient deze op momenten dat deze niet in gebruik is deugdelijk te zijn afgesloten (ontoegankelijk voor gebruik door derden)

    • e.

      Ingeval sprake is van een steiger, dan moet deze van schrikdelen, hoog ten minste 0.50 meter, worden voorzien en moet deze voldoen aan de bepalingen vervat in de beveiligingsvoorschriften van bouwwerken, samengesteld door het bestuur van de Rijksverzekeringsbank en de Arbeidsinspectie;

    • f.

      Voor zover de objecten aanwezig zijn tussen zonsondergang en zonsopgang, dienen deze gedurende die tijd te zijn voorzien van een deugdelijke verlichting (ter beoordeling van de bevoegde opzichter), met dien verstande dat containers te allen tijde op ieder zijvlak en kopstuk dienen te zijn voorzien van minimaal twee retro reflecterende markeringsstrepen (zie folder "Markeringseisen containers" uit de meest recente CROW-richtlijn “Markering onverlichte Obstakels)”.

    • g.

      Alle objecten waarop deze melding betrekking heeft dienen te zijn voorzien van een duidelijk opschrift met naam, adres en telefoonnummer van de eigenaar.

       

  • 2.

    Eisen waaraan alleen na nadere aanwijzingen van de ter plaatse bevoegde ambtenaren (wijkenbeheerders, team toezicht en handhaving en politie) moet worden voldaan:

    Deze aanwijzingen kunnen worden gesteld in het belang van de vrijheid en de veiligheid van het verkeer, alsmede ter voorkoming van schade aan gemeente-eigendom en kunnen onder meer inhouden:

    • a.

      het verplicht aanbrengen van rood doorschijnende obstakellichten

    • b.

      het indien nodig van gemeentewege maar voor rekening van melder plaatsen van verkeersborden; deze borden worden ter beschikking gesteld door en blijven in eigendom van de gemeente;

    • c.

      het afdekken van containers ter voorkoming van hinder door weer en wind.

    • d.

      voorzieningen aan steigers of containers ten behoeve van een veilige en ongehinderde doorgang voor voetgangers.

    • e.

      dat belanghebbendenparkeerplaatsen of betaalde parkeerplaatsen op rijbanen waar een stop- of parkeerverbod geldt, voetgangersgebieden of op openbaar groen, niet in gebruik mogen worden genomen een en ander tenzij hiervoor afzonderlijk toestemming is verleend of de melding is geaccepteerd.

       

  • 3.

    Tijdig melden

    Ten minste twee weken van te voren moet de voorgenomen feitelijke plaatsing bij het team Publiekscontacten vergunningen worden gemeld. Het daadwerkelijke plaatsen en eindigen van het plaatsen van de objecten moet ook worden gemeld bij het team Publiekscontacten vergunningen (tel. 14 0570).

     

  • 4.

    Staken van werkzaamheden

    Ingeval de bouw- c.q. sloopwerkzaamheden langer dan 2 maanden zijn gestaakt, alsmede in het geval de voorwaarden van de melding niet of niet behoorlijk worden nagekomen, kan het college de ingebruikname alsnog verbieden en verwijdering gelasten.;

     

  • 5.

    Beschadigingen

    Alle beschadigingen van aan de gemeente toebehorende eigendommen, die het gevolg zijn van de uitgevoerde werkzaamheden, worden voor rekening van de melder vanwege de gemeente hersteld (ongeacht door wie deze beschadigingen veroorzaakt zijn). Onder beschadigingen wordt tevens verstaan specieresten op de verhardingen.

     

  • 6.

    Kosten

    Melder is er mee bekend dat precariorechten alsmede- bij inname van betaalde parkeerplaatsen parkeergelden verschuldigd zijn over de periode dat openbare grond in gebruik wordt genomen,berekend per m².

Artikel 10 Inwerkingtreding

Dit besluit treedt in werking op de eerste dag na die waarop zij is bekendgemaakt.

 

Aldus besloten op 20 december 2017 te Deventer.

Burgemeester en wethouders

de secretaris,

M. Kossen

de burgemeester,

ir. A.P. Heidema

De burgemeester,

ir. A.P. Heidema

Toelichting

ALGEMEEN

 

De opzet van het besluit

Dit Aanwijzingsbesluit APV Deventer voorziet in één overzichtelijk geheel van alle aanwijzingsbesluiten op grond van de APV. Op deze manier draagt dit aanwijzingsbesluit bij aan een betere informatievoorziening van belanghebbenden. Daarnaast is van belang dat wij door middel van één besluit, waarin alle aanwijzingen zijn opgenomen, een integrale afweging kunnen maken van alle mogelijkheden, die de APV biedt, om verboden, die betrekking hebben op het gebruik van de openbare ruimte, in te stellen dan wel te laten vervallen.

 

Grondslag bevoegdheid

De Europese Dienstenrichtlijn beoogt een vrije interne markt voor diensten te creëren door alle onnodige beperkingen weg te nemen die aan die doelstelling in de weg staan. Deze regeling leidt dat veel activiteiten niet op voorhand voor het hele grondgebied van de gemeente van een ontheffing afhankelijk mogen worden gesteld. Dit past in het streven naar beperking van financiële en administratieve lasten voor burger, bedrijfsleven en overheid (deregulering). Dit heeft op zijn beurt geleid tot een andere wetgevingstechniek: Via zogenaamde aanwijzingsbesluiten kunnen de burgemeester en het college van burgemeester en wethouders daar waar nodig via algemene regels sturend optreden oftewel maatwerk leveren. Een activiteit is toegestaan tenzij er een bijzondere redenen is die activiteiten in bepaalde delen van de gemeente aan banden te leggen. De APV geeft het college van burgemeester en wethouders en de burgemeester op grond van verschillende bepalingen in de APV de bevoegdheid om door middel van een aanwijzingsbesluit aan een bepaalde gedraging een bepaald rechtsgevolg te verbinden. Daarnaast hebben het college van burgemeester en wethouders en de burgemeester op grond van bepalingen in de APV de bevoegdheid om door middel van een aanwijzingsbesluit een bepaald rechtsgevolg, dat de APV aan een bepaalde gedraging verbindt, weer ongedaan te maken.

 

ARTIKELSGEWIJZE TOELICHTING

 

Artikel 1 Gebiedsaanwijzing handel en dienstverlening op straat

Gebaseerd op wederzijdse verdraagzaamheid streeft de gemeente naar een zekere verdeling van lusten en lasten. Winkelgebieden moeten zo veel mogelijk beschermd worden tegen mensen die door hun –al dan niet opdringerig- handelen voetgangers hinderen of de vrije doorloop belemmeren, opdringerig gedrag vertonen of langdurig geluidhinder veroorzaken. Zo worden ook , om de bereikbaarheid voor hulpdiensten te waarborgen, grotere objecten geweerd in drukke winkelstraten in de binnenstad (uitstallingenbeleid).

 

De winkelstraat is een aantrekkelijke plaats voor het winkelend publiek; het is er vaak druk, maar dat is ook wel weer gezellig. Zoveel (potentiële) consumenten bij elkaar heeft ook een aantrekkingskracht op krantenverkopers, venters, donateurs en ledenwervers, handelaren en iedereen die iets aan de man wil brengen. De gemeente wil en kan niet al die “”straathandel” en de levendigheid die die handel met zich meebrengt” in zijn geheel verbieden, maar zij wil wel heel duidelijk zijn in haar taak in het zorgdragen voor rust en veiligheid op straat en het handhaven van de openbare orde. Niet iedereen is altijd gediend van de vrijheden die de ander geniet. De vrijheid van de een is de beperking van de ander.

 

Vanwege de duidelijkheid en herkenbaarheid is gekozen voor 1 set algemene regels (voorwaarden) waaraan een ieder die op straat iets aan de man wil brengen dient te voldoen, ook al zal de ene voorwaarde op de een meer van toepassing zijn dan op de ander. Buiten de aangewezen gebieden geldt de verbodsbepaling in zijn geheel niet.

 

Binnenstad

De afgelopen jaren is gebleken dat de handel en dienstverlening in de binnenstad dusdanige vormen heeft aangenomen dat het winkelend publiek, winkeliers en bewoners zich ergeren aan de opdringerige verkoopmethoden en zich ook lastig gevallen voelen. Dergelijke gevoelens passen niet bij een gastvrije Hanzestad. De gemeente is bovendien niet gediend met opstoppingen in drukke winkelstraten. Helaas hebben wij moeten constateren dat de algemene regels (voorwaarden) te vaak niet werden nageleefd, zodat mede gelet op het verzoek van het binnenstadmanagement besloten is om het kernwinkelgebied van Deventer wederom een ontheffingsstelsel in te voeren voor handel en dienstverlening op straat.

 

Ideële uitingen

Iedere burger heeft het Grondwettelijke recht om zijn mening te kunnen uiten, ook met behulp van borden, folders, aanplakbiljetten en andere propagandamiddelen. Om die reden kan de gemeente niet een algemeen verbod instellen op het verspreiden van stukken en afbeeldingen. Een algemeen verbod betekent een inbreuk op de vrijheid van meningsuiting op grond van artikel 7 van de Grondwet. Maar de openbare orde mag niet worden verstoord. Ook zal de bruikbaarheid, doelmatigheid in gebruik en beheer en het veilig gebruik van de weg moet in acht worden genomen. De aanwijzing beperkt zich daarom tot die plaatsen waar het verspreiden van stukken en afbeeldingen de meeste overlast veroorzaakt en voorafgaand toezicht door middel van een ontheffingsstelsel wenselijk is. Door deze aanwijzing blijven er in Deventer voldoende middelen over om gedachten en gevoelens te openbaren. Het verbod geldt immers niet voor het huis-aan-huis verspreiden of aan huis bezorgen van gedrukte of geschreven stukken en afbeeldingen. Bovendien kan het college ontheffing verlenen van het verbod.

 

Dienstverlening

Het op straat afnemen van enquêtes, marktonderzoek doen, productadvies geven e.d. wordt

beschouwd als het (ongevraagd) verlenen of aanbieden van een dienst waar niet iedereen van gediend is. Binnen de aangewezen gebieden hoeft geen ontheffing worden aangevraagd als aan de algemene regels uit deze aanwijzing wordt voldaan. Buiten de aangewezen gebieden geldt de verbodsbepaling in zijn geheel niet.

 

Folderen, flyeren

Ook voor het uitdelen van folders is geen toestemming van de gemeente nodig. Onder folder wordt hierbij elke vorm van gedrukte of geschreven stukken of afbeeldingen (strooibiljetten) verstaan. Het ‘uitdelen’ moet ook in de ruimste zin van het woord worden opgevat: verspreiden, aanbieden, aanbevelen en ook bekend maken worden daaronder verstaan. Het uitdelen van flyers mag niet gepaard gaan met het plaatsen van materialen op de openbare weg (bijvoorbeeld een auto op het trottoir of een kraampje van waaruit de zaken worden uitgedeeld). De marktterreinen zijn gebieden waar het op marktdagen verboden is te folderen.

 

De ervaring leert ook dat een groot deel van de uitgereikte artikelen vaak direct weer wordt weggegooid. Meestal meteen op straat. Degene die folders verspreidt of daar opdracht toe heeft verleend is verplicht de weggeworpen exemplaren direct op te ruimen. Weggegooide folders zijn dus de verantwoordelijkheid van de uitdeler, niet van de ontvanger!

 

Wanneer de gemeente opdraait voor de schoonmaakkosten van weggegooide folders, dan worden dekosten in beginsel verhaald op de opdrachtgever. Onder folderen, flyeren wordt niet het huis-aan-huis rondbrengen van ongeadresseerde post begrepen.

 

Standplaats, infostand

Om op een voor het publiek toegankelijke, in de openlucht gelegen plaats goederen te verkopen, t.b.v. de handel goederen af te geven of diensten aan te bieden is een standplaatsvergunning vereist. Hierop is een uitzondering gemaakt voor marktplaatsen. Daarvoor geldt een apart regime. Wanneer hiervoor vergunning is verleend wordt in de openbare ruimte op een aangewezen plek een standplaats ingericht (maatwerk). Een standplaats is een vast verkooppunt met fysieke hulpmiddelen, zoals een kraam of aanhangwagen Er zal in aangewezen gebieden in beginsel geen ontheffing worden verleend voor het in gebruik nemen van een standplaats. Een half uur op een zelfde locatie is het maximum.

 

Sampling, venten

Sampling is het om niet aanbieden van producten (‘samples’ ) aan voorbijgangers om een, meestal nieuw, product of proefmonster onder de aandacht te brengen. In de APV is dit aangeduid met ‘het afgeven van goederen’: Deze activiteiten zijn, om overlast en vervuiling te beperken aan dezelfde algemene regels gebonden. Venten vindt niet plaats vanuit een standplaats, maar al lopend.

 

Artikel 1a Gebiedsaanwijzing straatmuzikant

De meeste mensen zijn gecharmeerd van muziek en andere vormen van straatverlevendiging. Artistieke uitingen worden in beginsel dan ook gewaardeerd, zolang het niet hinderlijk is of overlast veroorzaakt. Muziek maken is in de binnenstad toegestaan, maar daarvoor dient men zich te houden aan de algemene regels uit deze aanwijzing die zijn gericht op verdeling van lusten en lasten. De gemeente kan en wil het optreden van genoemde personen niet ongelimiteerd beperken. De aanwijzing van verbodsplaatsen mag niet tot gevolg hebben, dat de gemeente het optreden op de weg praktisch onmogelijk maakt. Om die reden heeft de gemeente plaatsen aangewezen en algemene regels opgesteld, waar het optreden van personen de meeste overlast veroorzaakt.

 

Artikel 2 Gebiedsaanwijzing uitstallingenverbod

Omdat in veel winkelstraten in de binnenstad van Deventer een wildgroei viel te constateren van allerlei losse voorwerpen die ten behoeve van commerciële belangen van ondernemers zijn geplaatst, is eind jaren negentig in samenspraak met de Deventer Binnenstad ondernemers het uitstallingenbeleid geïntroduceerd en met succes. Het gaat daarbij niet alleen om artikelen die tot het assortiment van de winkel behoren, ook plantenbakken, reclameobjecten, speeltoestellen en reclamemateriaal behoren daartoe. Het uitstallingenbeleid is in 2016 herzien en in de Welstandsnota opgenomen.

 

Omdat de ruimte in de smalle, van oorsprong middeleeuwse, straten beperkt is vormen de uitstallingen een hinderlijk obstakel, niet alleen voor het winkelend publieke, maar ook voor blus- en redvoertuigen. Bovendien dragen ze bij aan een versnipperd, uitermate rommelig straatbeeld. Uit het oogpunt van beeldkwaliteit dienen uitstallingen in het Beschermd Stadsgezicht dus afwezig te zijn. Ofschoon het aanvankelijk de bedoeling was geen enkel voorwerp op de openbare weg te accepteren is destijds een compromis bereikt dat er in grote lijnen op neerkomt dat de uitstalling van verkoopwaar voor de eigen winkel is toegestaan tot 60 centimeter uit de gevel en dat reclameborden tijdens alleen tijdens winkelopeningstijden en tot een maximum oppervlakte van 0.80 m² per winkel zijn toegestaan wanneer deze plat tegen de gevel bevestigd zijn. Na enige jaren is nagenoeg het zelfde beleid ook geïntroduceerd voor het winkelgebied Boxbergerweg.

 

Mede dankzij een blijvende handhavingsinspanning kan in de bestaande gebieden waar het uitstallingenbeleid geldt, gesproken worden van een rustig straatbeeld.

Omdat bij herhaling klachten zijn ingediend over ongebreidelde ingebruikname van gemeentegrond door verkoopwaar, waardoor voetgangersverkeer ernstig wordt gehinderd, is besloten ditzelfde beleid in te voeren voor het winkelgebied Rielerweg.

 

Artikel 3 Gebiedsaanwijzing vuurwerkvrije zone

De raad van de gemeente Deventer heeft in november 2016 ingestemd met een initiatiefvoorstel om te inventariseren of er in de gemeente behoefte bestaat aan vuurwerkvrije zones. Het doel van zulke zones is om de vuurwerkoverlast tijdens de jaarwisseling te beperken. Naar aanleiding van het initiatiefvoorstel is de gevraagde inventarisatie uitgevoerd. Bij deze gelegenheid is ook onderzoek gedaan naar eventuele belangstelling voor een centraal vuurwerk. De vragen voor de enquêtes zijn vooraf voorgelegd aan GroenLinks als initiatiefnemer van de motie. Voor de inventarisatie is gebruikgemaakt van het Deventer Digipanel. Daarnaast zijn 15 instellingen (zorg- en verpleeginstellingen, ziekenhuis, milieucentrum) aangeschreven met vragen aan hun bewoners m.b.t. de wenselijkheid van een vuurwerkvrije zone in de omgeving van de instelling.

 

De conclusie is dus dat men positief staat tegenover vuurwerkvrije zones op een vijftal categorieën maar dat niet betrekt op de eigen buurt of wijk. Daarbij moet worden gemeld dat vier van de genoemde categorieën in Deventer niet in een woonbuurt aangetroffen worden. Woonzorgcentra/zorginstellingen daarentegen wel. Zulke instellingen zijn in dit kader ook aangeschreven. Het antwoord van de bewoners van deze instellingen is dus relevant voor de wens m.b.t. de eigen woonsituatie. De respons van de instellingen met bewoners bevestigt het beeld van het digipanel: geen behoefte aan het instellen van een vuurwerkvrije zone in de eigen leefomgeving. Het ligt dus niet voor de hand om daar een vuurwerkvrije zone in te stellen als de meeste bewoners in diezelfde buurt daar niet op zitten te wachten. De Ulebelt vormt een uitzondering en het past in het rijtje waarvan veel respondenten zich goed voor kunnen stellen dat een vuurwerkvrije zone hier gewenst is.

 

Op basis van het gehouden onderzoek is er reden om voor de Ulebelt een vuurwerkvrije zone in te stellen. Indien er in de toekomst alsnog signalen komen van instellingen die specifieke maatregelen willen treffen in relatie tot overlast door het afsteken van vuurwerk, bestaat de mogelijkheid om te zoeken naar een aanvaardbaar alternatief voor een (vuurwerk)verbod en de noodzakelijke handhaving. Te denken valt aan een publieksvriendelijke weg door bijvoorbeeld het gebruik van symbolen waarbij gevraagd wordt rekening te houden met ouderen of de aanwezigheid van dieren.

 

Artikel 4 Gebiedsaanwijzing verbod glas op de weg

Artikel 2:31a tweede lid van de APV Deventer biedt de burgemeester de mogelijkheid een gebied aan te wijzen waarbinnen het een ieder verboden is (drank in) glas bij zich te hebben gedurende een door de burgemeester in die openbare kennisgeving aangegeven periode.

 

De burgemeester heeft op verzoek van de politie Deventer de binnenstad van Deventer aangewezen als een gebied waarbinnen het een ieder tussen 01.00 uur en 09.00 uur verboden is (drank in) glas bij zich te hebben.

 

Omwille van doelmatige handhaving en bestrijding van ongeregeldheden is het derhalve nodig een rechtstreeks verbod op te leggen aan bezoekers van horeca-inrichtingen die zich buiten straat begeven. De wens bestaat de aanwijzing tevens in te zetten als horecaondernemingen geen enkele moeite doen om hun glaswerk van de straat te houden. De politie wordt regelmatig geconfronteerd met ondernemers die hun verantwoordelijkheid niet nemen waardoor grote groepen personen met glaswerk op de openbare weg staan. Dit verbod is ingesteld naar aanleiding van praktijkervaringen van de politie. Glas op de weg (bier- en wijnglazen, flesjes e.d.) in de nachtelijke uren leidt soms - zo blijkt in de praktijk - tot bedreigende situaties (zowel voor burgers als voor handhavend personeel). In de nachtelijke uren is de politie belaagd (“bekogeld”) dan wel bedreigd door personen die met glas gooien of dreigen te gooien.

Het gaat hier om exact hetzelfde gebied, als het gebied dat is aangewezen in verband met verboden drankgebruik.

 

Artikel 5 Gebiedsaanwijzing verboden drankgebruik

Bij daadwerkelijke verstoring van de openbare orde kunnen op grond van artikel 2 en 12 van de Politiewet bevelen tot verwijdering worden gegeven. Niet naleving daarvan is strafbaar op grond van artikel 184 van het Wetboek van Strafrecht.

 

Soms (als bijvoorbeeld wordt geconstateerd dat flesjes worden stukgegooid) zal optreden mogelijk zijn aan de hand van artikel 424 van het Wetboek van Strafrecht (baldadigheid). De hantering van deze wetsbepalingen is in de praktijk echter niet eenvoudig.

Daarom biedt artikel 2:48, eerste lid, APV het college de mogelijkheid “”in de voorfase” openbare plaatsen aan te wijzen waar het verboden is alcoholhoudende drank te gebruiken of aangebroken flessen, blikjes en dergelijke met alcoholhoudende drank bij zich te hebben anders dan:

  • a.

    op een terras dat behoort bij een horecabedrijf, als bedoeld in artikel 1 van de Drank- en Horecawet;

  • b.

    op een plaats, niet zijnde een horecabedrijf als bedoeld onder a, waarvoor een ontheffing geldt op grond van artikel 35 van de Drank- en Horecawet (bevoegdheid ontheffingverlening door de burgemeester voor het verstrekken van zwak-alcoholhoudende drank bij een in de beschikking aangewezen bijzondere gelegenheid van zeer tijdelijke aard voor een aaneengesloten periode van ten hoogste twaalf dagen)

 

Het nuttigen van alcoholhoudende drank op openbare plaatsen is niet in de gehele gemeente verboden. Een verbod mag ook niet voor de gehele gemeente gelden omdat de gemeente een goede grond moet hebben om een op zich legale gedraging te verbieden. Er moet een concrete aanleiding zijn waarom een bepaald gebied aangewezen wordt. Een gebied kan worden aangewezen als gerechtvaardigde vrees bestaat voor aantasting van de openbare orde, of als de openbare orde al is aangetast. Het middel moet proportioneel en subsidiair zijn en dus in verhouding staan tot het beoogde doel. Het nuttigen van alcoholhoudende drank kan onder omstandigheden wel overlast veroorzaken: Als personen in groepen op een bepaalde openbare plaats bij elkaar gaan hangen, veel alcohol nuttigen en onder invloed zijn dan leert de ervaring dat overlastsituaties kunnen ontstaan. Voor gebieden met “praktijkervaring” is het aanwijzen van een gebied “de aangewezen weg”. In het belang van de openbare orde is ingrijpen in de vrijheid van de burger dan geboden.

 

De voornaamste reden om gebieden aan te wijzen is de politie en team toezicht en handhaving een doeltreffende handhavingsmiddel te verschaffen om overlast te bestrijden. Tijdens uitgaansuren wordt stevig ingedronken door de jeugd. Flessen met sterke drank worden veelal aangetroffen in de aanloopstraten en blikken bier worden binnen het gehele centrum aangetroffen, reden waarom de politie heeft verzocht ook de binnenstad van Deventer aan te wijzen als “alcoholvrij gebied”. Ook van het glaswerk gaat een gevaarzettende werking uit. Wat in mindere mate bij de politie leeft, maar wel goed is om te bedenken, is dat drinkende (zwervers)groepen niet bijdragen aan het sfeervolle aangezicht van een gastvrij Deventer.

 

Binnenstad

In de binnenstad is een verschuiving waargenomen naar pleinen en straten die niet binnen het aangewezen gebied vielen (bijvoorbeeld Brinkpoortplein). Ook vanwege de eenduidigheid van het verbod is ervoor gekozen om het gehele stadscentrum aan te wijzen als gebied waarbinnen het verboden is om alcoholhoudende drank te nuttigen op openbare plaatsen.

 

Overige gebieden

Uit informatie van de politie en derden is gebleken dat op de Beestenmarkt en winkelcentrum Colmschate overlast bestaat als gevolg van drankgebruik door o.a. jongeren.

Om deze reden - terugdringen van overlast veroorzaakt door hinderlijk drankgebruik in de aangewezen gebieden - is op 15 juni 2010 besloten voor deze locaties een alcoholverbod in te stellen door aanwijzing van deze gebieden op grond van artikel 2:48, eerste lid van de APV.

Om dezelfde redenen is op verzoek van de politie op 9 juli 2010 ook de omgeving van het station NS als “alcoholvrij” gebied aangewezen: Het veelvuldig ophouden van zwervers en (openbaar) drankgebruik voor en achter het station veroorzaakt veel overlast voor het publiek. Op basis van soortgelijke praktijkervaringen is op verzoek van de politie de directe omgeving van voetbalstadion de Adelaarshorst aangewezen.

 

Artikel 6 Gebiedsaanwijzing Fietsparkeerverbod

 

I. Kop van de Brink

In het belang van het uiterlijk aanzien van de gemeente, ter voorkoming van en opheffing van (veiligheids)overlast, alsmede ter voorkoming van schade aan de openbare gezondheid hebben burgemeester en wethouders dit gebied per 15 maart 2006 aangewezen als gebied waarbinnen het verbonden is fietsen of bromfietsen onbeheerd buiten de daarvoor bestemde ruimten te plaatsen of te laten staan.

 

Dit besluit was met name ingegeven op verzoek van de brandweer die aangaf dat de belangrijke aanrijdroute naar de Brink en de Korte Bisschopstraat door de aanwezigheid van wild geparkeerde fietsen binnen dit gebied onvoldoende vrij is. Dit betekent een vertraging in de inzet, wat in combinatie met evenementen, markt en terrassen in een dichtbevolkt hoog-risicogebied onwenselijk is. Daarnaast hadden de stadsmanager en de marktmeester aangegeven dat winkeliers en markt veel overlast ondervonden van de fietsen die her en der –ook voor winkelingangen – werden geplaatst. Omdat de gemeente fietsgebruik wil stimuleren en dus fietsvriendelijk wil optreden, maar het anderzijds en veiligheids- en overlastoverwegingen noodzakelijk is tegen wild geparkeerde fietsen op te treden, is het gebied met een fietsparkeerverbod zo klein mogelijk gehouden.

 

Gezien het specifieke veiligheidsbelang en de duur van de meeste overtredingen (vaak wordt de fiets even gestald om een paar boodschappen te doen) wordt er voor gekozen verkeerd gestalde fietsen binnen dit gebied - voor overtreders - gratis- te verplaatsen naar een speciaal daarvoor bestemde parkeervoorziening aan de Gedempte Gracht (achter de schouwburg). Reguliere toepassing van bestuursdwang (verwijdering op kosten van overtreder) kan door procedurele waarborgen –stickeren en na een paar uur verwijderen - niet leiden tot effectief optreden tegen overtreders. Van fietsen die vastgeketend zitten aan lantaarnpalen e.d. worden de sloten losgeknipt en worden deze vervolgens in bewaring genomen bij team toezicht en handhaving.

 

II. Stationsomgeving

Ondanks de aanwezigheid van voldoende fietsparkeervoorzieningen, namelijk in fietsenrekken bovengronds (onbetaald en onbewaakt) en een bewaakte fietsenstalling ondergronds (onbetaald) blijkt dat in de directe omgeving van het station nog altijd veel fietsen op allerlei plaatsen worden gestald behalve in de daarvoor bestemde rekken.

Dit leidt niet alleen tot een wanordelijk gezicht en irritaties bij reizigers, maar het leidt ook tot onveilige situaties. De kwaliteit van de openbare ruimte wordt hierdoor danig aangetast.

 

Daarnaast worden de fietsrekken met zekere regelmaat gebruikt als opslagplaats. Fietsen en fietswrakken worden daar soms gedurende zeer lange tijd achtergelaten, waardoor een tekort, ontstaat op het aantal beschikbare fietsparkeervoorzieningen voor de groep waarvoor deze voorzieningen zijn bestemd, te weten de reizigers.

Dit betekent dat niet alleen kan en zal worden opgetreden tegen fietsen die buiten de rekken staan, maar ook tegen fietsen die langer dan 8 dagen in de rekken ”achter” blijven (oneigenlijk gebruik).

 

Optreden is mogelijk op grond van artikel 2:53 van de APV (Overlast van fiets en bromfiets). Dit artikel) is opgenomen in de afdeling “Maatregelen tegen overlast en baldadigheid” .

Met zekere regelmaat zullen de verkeerd dan wel te lang gestalde fietsen met toepassing van bestuursdwang (dat wil zeggen op kosten van overtreders, ad. € 15,-- ) worden verplaatst naar het direct achter het station reeds aanwezige Fietsdepot Deventer, dat is ingericht volgens de landelijke AFAC methodiek (Algemene Fiets Afhandel Centrale). Het handhavingsbeleid en het hieraan gerelateerde fietsbeheer kan hierdoor klantgerichter, doeltreffender en efficiënter worden uitgevoerd (meer capaciteit, flexibiliteit en kwaliteit). Na betaling van de kosten kan de fiets weer worden meegenomen.

 

De binnen het aangewezen gebied, maar buiten de stalling geplaatste fietsen worden ‘s-morgens voorzien van een waarschuwingssticker (de formele bestuursdwangwaarschuwing) en later op de dag, maar niet binnen 4 uur na het aan brengen van de sticker verwijderd en naar het fietsdepot ge bracht. Volgens jurisprudentie wordt op deze wijze in voldoende mate voldaan aan het bekendmakingsvereiste als bedoeld in artikel 3:41, tweede lid, van de Awb (omdat de naam en het adres van overtreder bij de gemeente niet bekend is).

De te lang gestalde fietsen worden opgespoord door het met zekere regelmaat aanbrengen van stickers, waarop fietseigenaren erop worden geattendeerd dat de fiets maximaal 8 dagen in de stalling mag blijven staan. Staat deze er voorzien van sticker 8 dagen later nog dan is er sprake van een overtreding en wordt die fiets van een waarschuwingssticker (bestuursdwangwaarschuwing) voorzien.

Diezelfde dag, maar niet binnen 4 uur, wordt ook die fiets dan naar het fietsdepot gebracht, waarna de eigenaar deze tegen betaling van kosten (€ 15,--) kan komen ophalen.

De fietsen worden -tenzij het om fietswrakken gaat- minimaal 13 weken na verwijdering in het Fietsdepot Deventer bewaard.

 

Zolang daarvoor geen geschikte onbetaalde parkeervoorzieningen zijn getroffen worden ligfietsen, fietskarren, bakfietsen, tandems, en andere fietsen met afwijkende maatvoering die niet in de standaard fietsrekken passen ongemoeid gelaten tenzij deze aantoonbaar hinderlijk of gevaarlijk staan (in welke geval deze worden verplaatst naar een minder hinderlijke plaats).

 

Op hinderlijk geplaatste fietsen buiten aangewezen gebieden is artikel 2:5 van de APV van toepassing, voor fietswrakken biedt artikel 5:5 van de APV een oplossing. Tegen weesfietsen buiten aangewezen gebieden ( fietsen die onbeheerd gedurende een lange periode in de openbare ruimte worden gestald of achtergelaten) wordt langs privaatrechtelijke weg (zaakwaarneming) opgetreden.

 

Artikel 7 Gebiedsaanwijzing ligplaats woonschepen en overige vaartuigen

 

I. Gebiedsaanwijzing ligplaats woonschepen

Het betreft hier grotendeels een heraanwijzing van de woonschepenhaven zoals die in 1965 krachtens de Wet op de Woonwagens en Woonschepen” heeft plaatsgevonden: Snipperlingsdijk, Hunneperkade en de Douwelerstraat alsmede de Buitengracht langs de Bergsingel en de Sluisstraat. Het gebied is weergegeven op de Gebiedsaanwijzingskaart ligplaats voor woonschepen, APV Deventer ”

 

De bestaande woonschepenlocaties blijven gehandhaafd. Overgangssituaties uitgezonderd, kan voor het met een woonschip innemen van een ligplaats uitsluitend ontheffing worden verleend binnen deze aangewezen ligplaatsen. Daarbuiten is geen ontheffing mogelijk, onder meer vanwege botsende belangen met de reguliere scheepvaart. De huidige woonschipbewoners worden geacht over een ontheffing te beschikken. Deze ontheffing is persoonsgebonden. Nieuwe bewoners hebben een ontheffing nodig.

 

II. Gebiedsaanwijzing overige vaartuigen

Krachtens deze aanwijzing is het zonder ontheffing toegestaan met een vaartuig, niet zijnde een woonschip, ligplaats in te nemen of te hebben dan wel een ligplaats voor een vaartuig beschikbaar te stellen op alle gedeelten van openbaar water gelegen langs Onder de Linden, de Wellekade, de Pothoofdkade, de Voorhaven, de Gashaven en de Havenarmen, zoals aangegeven “Gebiedsaanwijzingskaart ligplaats overige vaartuigen, APV Deventer ”. In het masterplan IJsselfront van 25 oktober 2004 is de wens uitgesproken om tot een passantenhaven te komen aan de Worpzijde van de IJssel. Dit betekent dat onder andere dat salonboten geen ligplaats meer in kunnen nemen aan de Worpzijde.

 

Artikel 8 Categorie-aanwijzing vergunningvrije voorwerpen in, op of boven openbare plaatsen

Dit artikel heeft betrekking op de aanwijzing van een aantal onbeduidende zaken en handelingen die op of boven openbare grond mogen worden geplaatst of uitgevoerd zonder voorafgaande overheidsbemoeienis.

 

Artikel 9 Nadere regels voorwerpen op de aan of boven de weg of een andere openbare plaats: Containers, steigers, hekwerken, loodsen, bouwmaterialen e.d.

In dit artikel zijn standaardregels geformuleerd voor het innemen van openbare grond voor containers, steigers, hekwerken, loodsen, bouwmaterialen en dergelijke in verband met de uitvoering van bouw- sloop- onderhouds- en gevelwerkzaamheden. Als aan deze regels wordt voldaan dan bestaan geen bezwaren tegen de ingebruikname van open bare grond. Wel dient het voornemen openbare grond in gebruik te nemen te worden gemeld. Dat heeft een tweeledig doel. Enerzijds is dit in het belang van de verschillende hulpdiensten , zoals brandweer ziekenauto en politie, anderzijds dienen over de duur van de inneming precariorechten te worden betaald per m²).

De indiening van de melding kan eenvoudig langs digitale weg plaats vinden.

 

Artikel 10 Inwerkingtreding

Dit artikel spreekt voor zich